𝗛𝗢𝗡𝗚'𝗦 𝗛𝗢𝗨𝗦𝗘

Ô Vuông House
𝗛𝗢𝗡𝗚'𝗦 𝗛𝗢𝗨𝗦𝗘

line

HONG HOUSE - Cá tính về màu sắc

 

▐ Công trình : Hong House

▐ Chủ đầu tư: Chị Hồng

▐ Vị trí: Chung cư Hà Đô Central, Q. 10, TP. Hồ Chí Minh

▐ Đơn vị thiết kế và thi công: Ô Vuông House

 

Thiết kế theo phong cách hiện đại, màu sắc mang đậm cá tính của chủ nhà.

 

 

Ô Vuông House

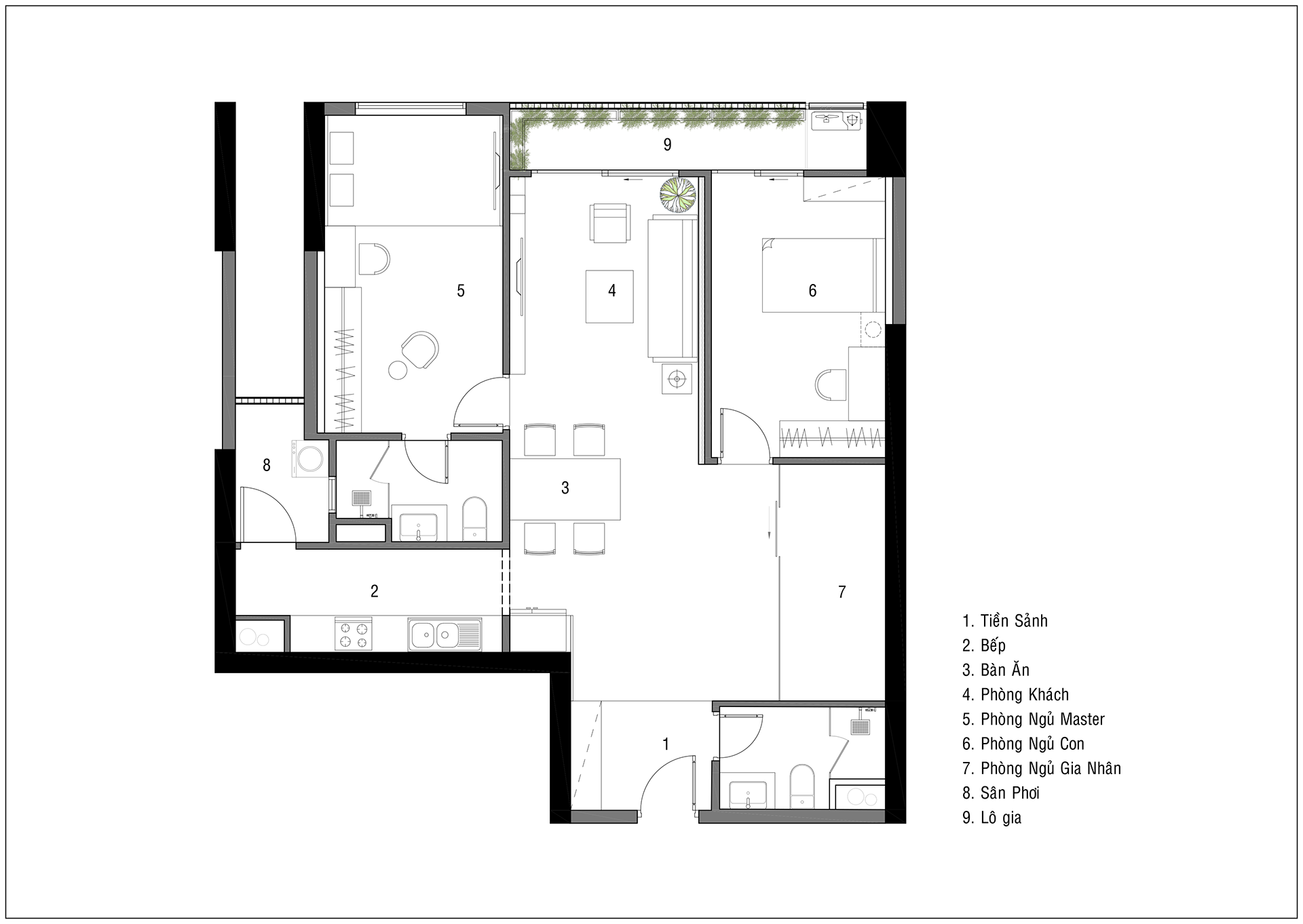
MẶT BẰNG 2 PHÒNG NGỦ

 

Ô Vuông House

 

Ô Vuông House

 

Ô Vuông House

 

 

Ô Vuông House

 

 

 

Ô Vuông House

 

Ô Vuông House

 

Ô Vuông House

 

Ô Vuông House

 

Ô Vuông House

 

 

 

 

 

 

 

 

 

 

 

 

 

 

 

 

 

 

 

 

Zalo
Hotline
Văn bản gốc
Đánh giá bản dịch này
Ý kiến phản hồi của bạn sẽ được dùng để góp phần cải thiện Google Dịch